Villetta bifamiliare con dependance e foresteria

In vendita
Pedara - corso ara di giove , 372
350.000 €
Villa
Categoria
270
m2
8
Locali
Descrizione
In una cornice di villette residenziali immerse nel verde, a pochi minuti sia da Pedara che da Nicolosi, proponiamo una accogliente villetta ideale per chi cerca tranquillità e aria pulita ai piedi dell’Etna, con suggestivi panorami sul vulcano più grande d’Europa.

La proprietà è organizzata in più corpi distinti che garantiscono privacy e grande flessibilità d’uso.

Il corpo centrale si sviluppa su due livelli tra loro autonomi, ciascuno con ingresso indipendente, perfetti per ospitare due nuclei familiari o per coniugare abitazione principale e zona ospiti.

Un secondo volume attiguo, dotato di forno, è pensato come vera e propria area conviviale, ideale per pranzi all’aperto, feste in famiglia e serate con gli amici.

In fondo al giardino si trova una dependance completamente indipendente, perfetta per accogliere parenti o ospiti in totale comfort, oppure da adibire a studio privato o casa vacanze.

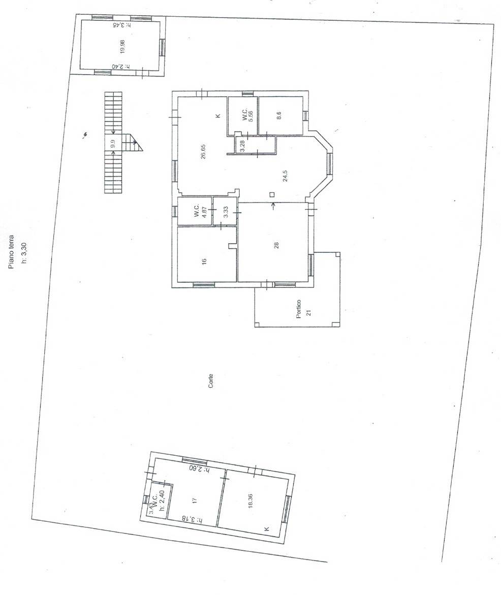
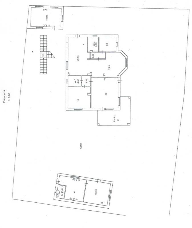
La struttura principale offre un ampio open space nel quale è possibile delineare tre ambienti distinti: una spaziosa zona pranzo con cucina a vista, un confortevole soggiorno e un elegante salone, creando così un cuore della casa luminoso e funzionale.
Il piano terra è completato da due ulteriori camere e da due bagni, pensati per soddisfare le esigenze di una famiglia o per chi desidera spazi ben organizzati anche per lo smart working.
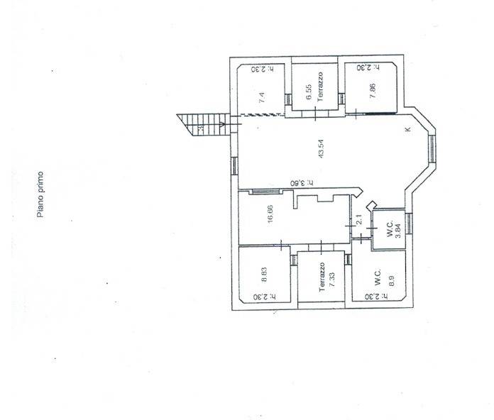
Una scala esterna conduce al livello superiore, anch’esso ben distribuito e particolarmente luminoso grazie a due terrazzini panoramici, dai quali godere di una incantevole vista sull’Etna e dei piacevoli tramonti sui paesaggi etnei.
Tutti gli ambienti sono realizzati con materiali di pregio: parquet, porte, infissi , servizi igienici con vasca idromassaggio , cucina in muratura stile siciliano, forno esterno in pietra. L'esterno è composto da un grande giardino piantumato con alberi di alto fusto . In dettaglio:
-piano terra misura 112mq.
-il livello superiore 100 mq.
- dependance 39 mq.
-zona conviviale 20 mq.
totale calpestabile coperto 270 mq.
Virtual tour
Video
Caratteristiche principali
Codice:
2863
Città:
Pedara
Categoria:
Villa
Locali:
8
Mq:
270
Anno:
2003
Classe energetica:
In fase di valutazione
Stato Immobile:
Buono
Grado:
Signorile
Posizione:
Montagna
Panorama:
Vista Monti
Orientamento:
Nord Ovest Sud Est
Lati Liberi:
4
Giardino:
Privato
Arredi:
Non Arredato
Tipo Soggiorno:
Salone
Tipo Cucina:
Abitabile
Riscaldamento:
Autonomo
Tipo Riscaldam.:
Caldaia
Tipo Impianto:
Radiatori
Fonte Energetica:
GPL
Acqua Calda:
Autonoma
Raffrescamento:
Split
Infissi:
PVC Doppio Vetro
Serramenti:
Buono
Persiana:
Tapparella Metallo
Pavim. Giorno:
Cotto
Pavim. Notte:
Parquet
Pavim. Cucina:
Cotto
Pavim. Bagno:
Ceramica
Accessori
Aria Condizionata
Cancello Elettrico
Doppi Vetri
Lavanderia
Passaggio Automobilistico
Passaggio Pedonale
Porta Blindata
Ripostiglio
Stufa a Pellet
Vasca Idromassaggio
Mappa
Richiedi informazioni
Invia
Cookie preference